Skip to content
  • (250) 893-6618
  • Connect
    • Email
    • X
    • Facebook
    • LinkedIn
Todd headshot
Todd Mahovlich logo
Skip to content
  • Home
  • About
    • About
    • Testimonials
  • Featured Listings
    • Featured Listings
    • Past Sales
    • Office Listings
  • Property Search
    • Saanich Peninsula
    • West Shore
    • Oak Bay
    • Saanich
    • Esquimalt
    • View Royal
    • Custom Search
  • Resources
    • Buyer’s Guide
    • Seller’s Guide
    • Mortgage Calculator
    • Home Evaluation
  • VRES Project Sales Current and Completed
Todd Mahovlich logo

- VICTORIA REAL ESTATE SOLUTIONS -

Todd Mahovlich Victoria Real Estate Solutions
Sold

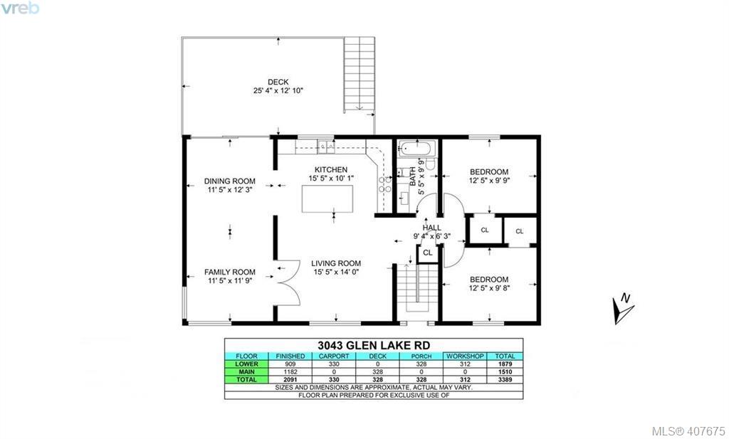
3043 Glen Lake Road

Glen Lake – Victoria, BC

32
  • 3043 Glen Lake Road
  • $652,500
  • 4 bedrooms
  • 2 bathrooms
  • 2,091 sqft
1 of 32
This listing is provided by Royal LePage Coast Capital - Chatterton
  • Details

  • Sold Price $652,500
  • MLS® # 407675
  • Date Sold August 2019
  • Style Bi-Level Entry
  • Bedrooms 4
  • Bathrooms 2
  • Year Built 1956
  • Age 64
  • Floor Space 2,091 sqft
  • Lot 7,585 sqft lot
  • Taxes $2,400
  • Tax Year 2018
  • Features View: Mtn, View: Water
  • Address 3043 Glen Lake Road, Victoria, BC

About

Walk to Langford Lake Beach or Glen Lake Beach among all the other amenities including Westhills Stadium, City Centre Park, Quality Foods, Westshore Town Centre, Belmont Market and across the street from Belmont High School. Vista views from the front and back. 3 bedroom home open concept kitchen, living, dining, family rooms totally separate from 1 bedroom suite each with their own laundry and plenty of off street parking. Much of the heavy lifting has been done, just move in or potentially keep current long term tenants (mth to mth) up and down at $2750/ mth plus utilities. Workshop/ garage is in need of repair, taken into account determining list price, large carport 28×12. Lots of character to this 50’s home including the original hardwood floors and cove ceilings. Already hooked up to sewer, 200 amp service plus sub panel for shop, roof more than half its life left, windows redone all vinyl. Lot 7585sqft. On transit route, both directions straight out front.

3043 Glen Lake Road Media

3043 Glen Lake Road Virtual Tour

Contact

Victoria Real Estate Solutions
  • A featured listing of
    Victoria Real Estate Solutions
  • My Office Royal LePage Coast Capital Realty
  • Mobile (250) 893-6618
  • Email todd@vres.ca

Community

Mortgage calculator

Royal LePage Coast Capital Realty — 110-4460 Chatterton Way Victoria, BC V8X 5J2 — (250) 477-5353
© 2026 Victoria Real Estate Solutions
Home / Walk to Langford Lake Beach or Glen Lake Beach
Property information is provided under copyright by VIVA. The information is from sources deemed reliable, but should not be relied upon without independent verification. No warranties or representations are made of any kind. The website may only be used by consumers for the purpose of locating and purchasing real estate. Listing data last updated 2026-02-10T16:02:09Z.
Powered by Avenue
The growth engine for driven real estate professionals.